|

Pavillon Boucherville
Boucherville, (Québec)
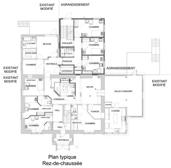
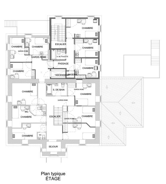
Ce projet d’ampleur moyenne
comprend des parties existantes
et un ajout, le tout
selon une perspective de mise aux normes
et d’une amélioration de
la fonctionnalité et de la rentabilité.
Clientèles privée et publique.
Pour personnes autonomes et en perte d’autonomie.
Acteurs :
Promoteur : Le Pavillon
Boucherville.
Directeur du projet : M. Deslauriers.
Entrepreneur constructeur : Construction Eiffel.
Architecte : Michel
Tellier architecte
Ampleur du projet :
Près de 30 chambres
Notre participation :
Étude de faisabilité selon
le Code du Bâtiment et le règlement d’urbanisme.
Plans et devis. Modèle 3d.
Rendu couleur.
Aide au choix de
l’entrepreneur général.
Suivi de chantier.
Particularités :
Ce projet,
agrandissement d’un bâtiment historique, fût un défit de
planification et de respect des exigences du Code du bâtiment et de
la Régie du bâtiment.
À l’origine, cet
édifice était une résidence privée de cachet seigneurial.
Et il était soumis à
des exigences particulières pour le respect de ce cachet.

Voici la tournée de
l’architecte et du propriétaire, une suite de photos du projet construit
et qui illustre les dits
de la fiche technique :
Style extérieur
harmonisé, confinement sur le site pour respecter les dimensions
maximales permises par la ville pour ce projet d’agrandissement d’un
édifice historique, accès sans obstacle via une rampe intégrée à
l’aménagement paysager, simplification des circulations intérieures,
pose d’un nouvel élévateur de dimensions conformes pour l’entrée d’une
civière, respect du Code du bâtiment pour l’encloisonnement des
escaliers d’issue, etc.


Cliquez ici pour voir la galerie de rendu
couleurs de ce projet |